Aller au contenu principal
Réf. : VT260-50048
Dernière mise à jour de l’annonce : 13/10/2025

Vente

65 183 € (Honoraires de négociation inclus)
61 625 € (Prix net vendeur)
Montant des honoraires : 3 558 €
Pourcentage des honoraires : 6 %
Honoraires à la charge de l'acquéreur
50340 Helleville
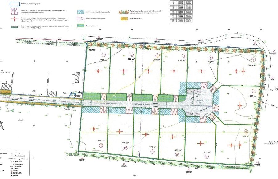
Dans un lotissement de 13 lots, dans le centre bourg, terrains à bâtir viabilisés. Assainissement autonome. Reste disponibles : lot 2 - 825 m² - 61.625 € NV Les informations sur les risques auxquels ce bien est exposé sont disponibles sur le site Géorisques : georisques.gouv.fr

Conditions de vente

Prix HNI :  65 183 €
(honoraires de négociation inclus)
Prix net vendeur :  61 625 €
Honoraires :  3 558 € (Montant des honoraires de négociation)
Pourcentage d'honoraires :  6 %
Frais d’acte :  6 170 €
Type d'honoraires :  À la charge de l'acquéreur

Contact

Office :  OFFICE DES CAPS
Négociateur : Guillaume LE COUTOUR
Téléphone : 06 12 04 42 79
Adresse : 33 Route de Flamanville
Code postal :  50340
Ville :  LES PIEUX