Aller au contenu principal
Réf. : VT252-50048
Dernière mise à jour de l’annonce : 25/11/2025

Vente

63 480 € (Honoraires de négociation inclus)
60 000 € (Prix net vendeur)
Montant des honoraires : 3 480 €
Pourcentage des honoraires : 6 %
Honoraires à la charge de l'acquéreur
50340 Sotteville
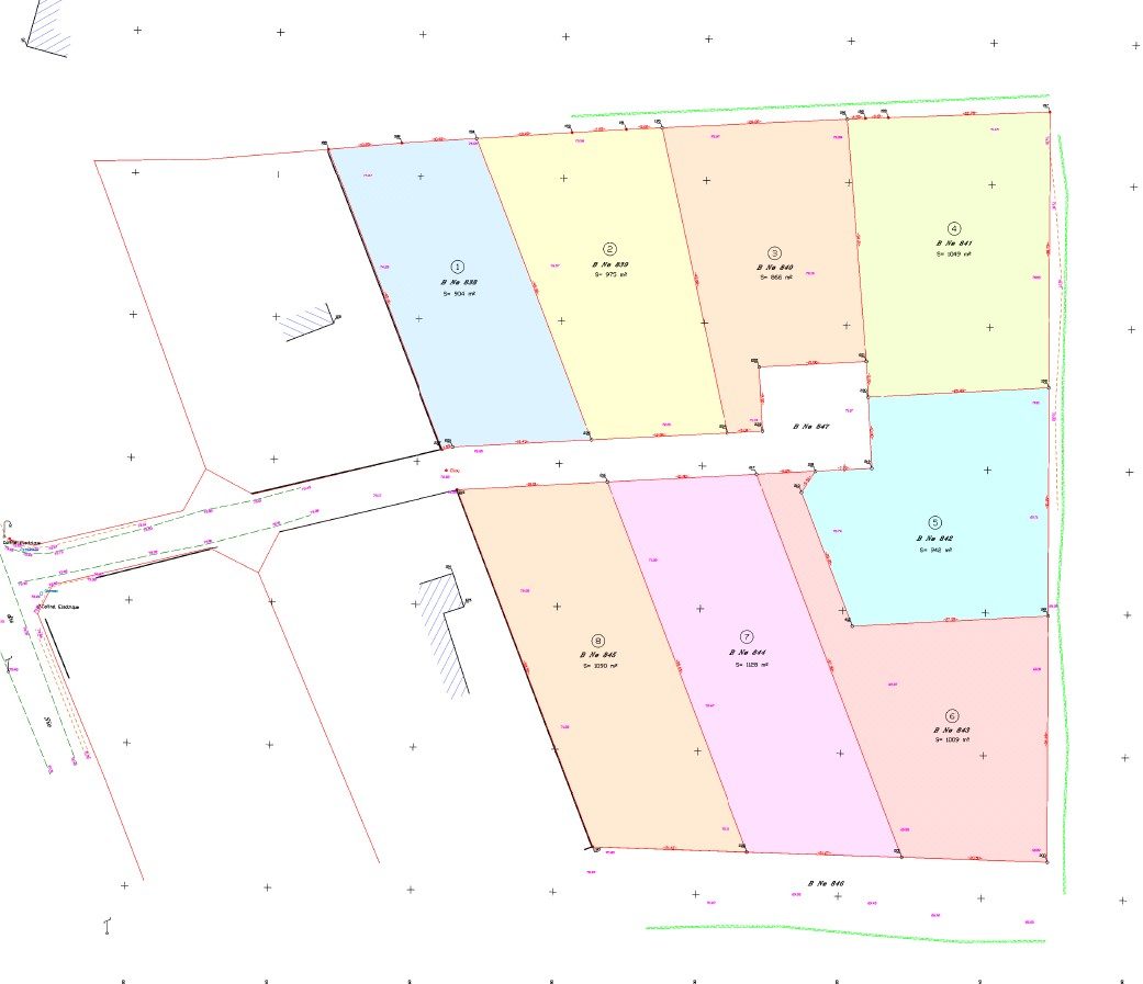
Situés en plein bourg, dans un lotissement de 8 lots, 4 parcelles de terrains à bâtir : - lot 1 = 904 m² = 62.000 € net vendeur - VENDU - lot 2 = 975 m² = 63.000 € net vendeur - VENDU - lot 3 = 866 m² = 60.000 € net vendeur - lot 4 = 1049 m² = 64.000 € net vendeur - VENDU - lot 5 = 942 m² = 63.000 € net vendeur - VENDU - lot 6 = 1009 m² = 64.000 € net vendeur - VENDU - lot 7 = 1128 m² = 65.000 € net vendeur - VENDU - lot 8 = 1090 m² = 65.000 € net vendeur - VENDU Parcelles viabilisées. Assainissement individuel Les informations sur les risques auxquels ce bien est exposé sont disponibles sur le site Géorisques : georisques.gouv.fr

Conditions de vente

Prix HNI :  63 480 €
(honoraires de négociation inclus)
Prix net vendeur :  60 000 €
Honoraires :  3 480 € (Montant des honoraires de négociation)
Pourcentage d'honoraires :  6 %
Type d'honoraires :  À la charge de l'acquéreur

Contact

Office :  OFFICE DES CAPS
Négociateur : Guillaume LE COUTOUR
Téléphone : 06 12 04 42 79
Adresse : 33 Route de Flamanville
Code postal :  50340
Ville :  LES PIEUX