Aller au contenu principal
Réf. : 14085-3663
Dernière mise à jour de l’annonce : 18/03/2026

Vente

230 200 € (Honoraires de négociation inclus)
220 000 € (Prix net vendeur)
Montant des honoraires : 10 200 €
Pourcentage des honoraires : 5 %
Honoraires à la charge de l'acquéreur
14110 Condé-en-Normandie
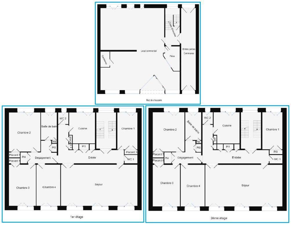
Centre-ville de CONDE - Investissement locatif. Immeuble en monopropriété, libre de toute location et renfermant : - au RDC : local commercial de 115m² comprenant : magasin, bureau, WC ; - au 1er étage : appartement de 148m² comprenant : entrée / couloir, séjour avec balcon, cuisine, quatre chambres, salle de bains, deux WC ; - au 2ème étage : appartement de 148m² comprenant : entrée / couloir, séjour avec balcon, cuisine, quatre chambres, salle de bains, deux WC ; - au 3ème étage droite : appartement de 96m² comprenant : entrée / couloir, séjour avec terrasse, cuisine, deux chambres, salle de bains, WC ; - au 3ème étage gauche : studio de 33m² avec salle d'eau / WC. Caves sur la totalité. Grenier au-dessus. A l'arrière une cour, bâtiment à usage de garages (x2) et caves / stockage, terrain.

Général

Surface Plancher : 426 m2

Bilan énergétique

Date du diagnostic :  17-02-2026
DPE
Logement économe
296 kwh/m²/an
Logement énergivore
GES
Faible émission de GES
58 kg CO₂/m²/an
Forte émission de GES

Depuis le 1er juillet 2021, c’est la plus mauvaise des deux performances (DPE ou GES) qui est retenue au final.

Conditions de vente

Prix HNI :  230 200 €
(honoraires de négociation inclus)
Prix net vendeur :  220 000 €
Honoraires :  10 200 € (Montant des honoraires de négociation)
Pourcentage d'honoraires :  5 %
Type d'honoraires :  À la charge de l'acquéreur

Contact

Négociateur : SERVICE VENTE
Téléphone : 02 31 59 22 07
Adresse : 3 Rue Saint-Martin
Code postal :  14110
Ville :  CONDE EN NORMANDIE